Bloor Street Midrise
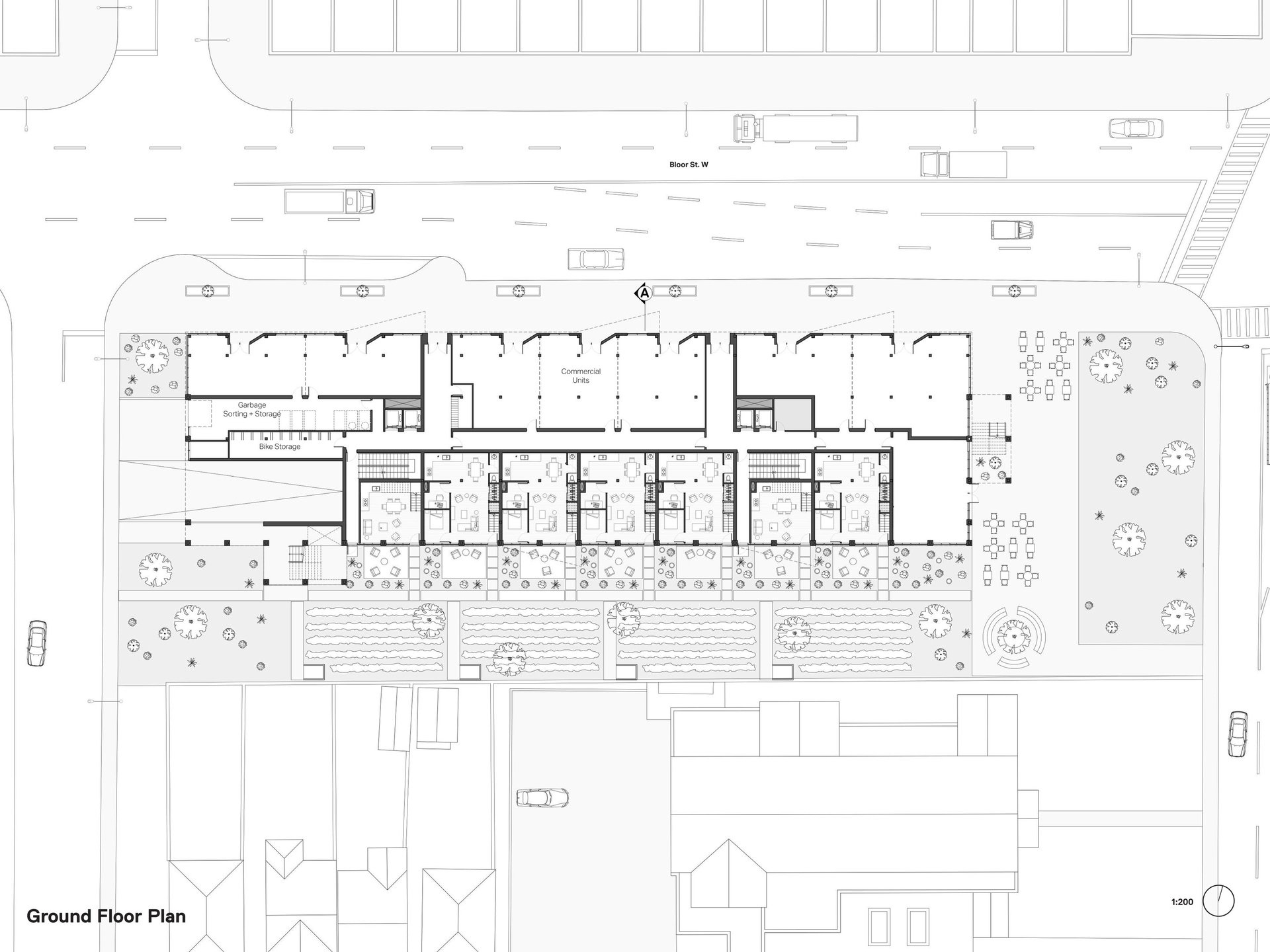
This architectural concept explores a typology of midrise residential buildings that is catered toward the neighbourhood it is situated in; Bloor West Village. Bloor West Village is predominantly detached, single family homes with two-storey commercial buildings along the main road. This concept aims to integrate the qualities and functionalities of the existing residential neighbourhood into a more densified form factor. This involves studying the circulation and spatial relationships that are present in the surrounding context and finding a solution which reimagines these conditions into a mid-rise building..
Location
Bloor Street, Toronto


Distinctions
Toronto Metropolitan University Year End Show


DENSIFY.
The site is densified with a massing that is guided by the Bloor West Avenue Study and Toronto mid-rise guidelines.
PIXELATE.
The building is pixelated into modular units. Setbacks are created to allow for walkable terraces and gardens above grade.
VEGETATE.
Alternating units are shifted outwards to allow for more significant vegetation and trees to be planted on balconies and terraces.
Concept Diagrams














Elevation
















