I am driven by curiosity, collaboration, and a commitment to thoughtful, people-first design grounded in context and research.
Featured work
Portfolio
{ ABOUT }
With 8 years of experience in architecture, I focus on creating environments that resonate with people across multiple scales, contexts, and sensory dimensions.
{ ABOUT }
I am passionate about approaching design in a way that positively contributes to the built environment and supports a resilient future.
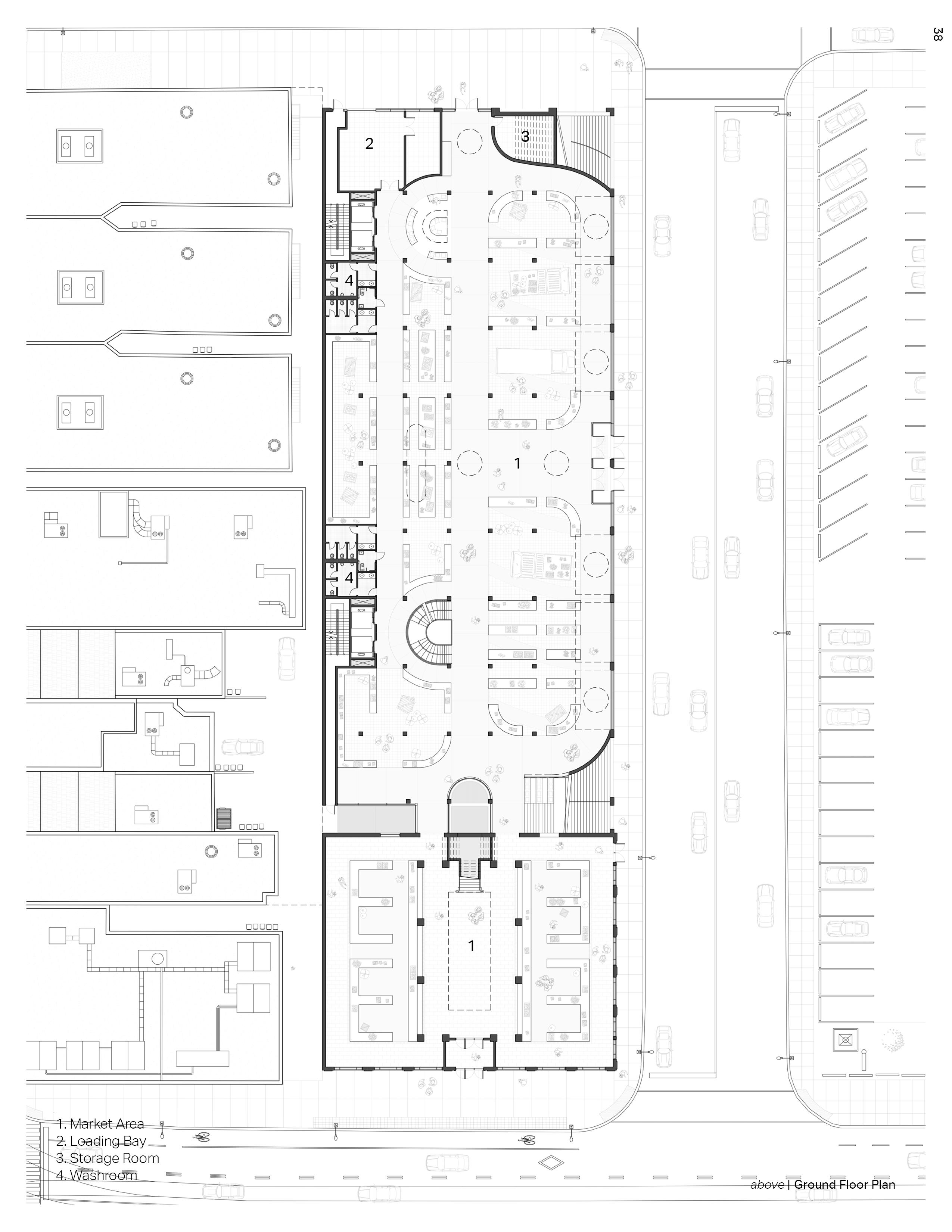
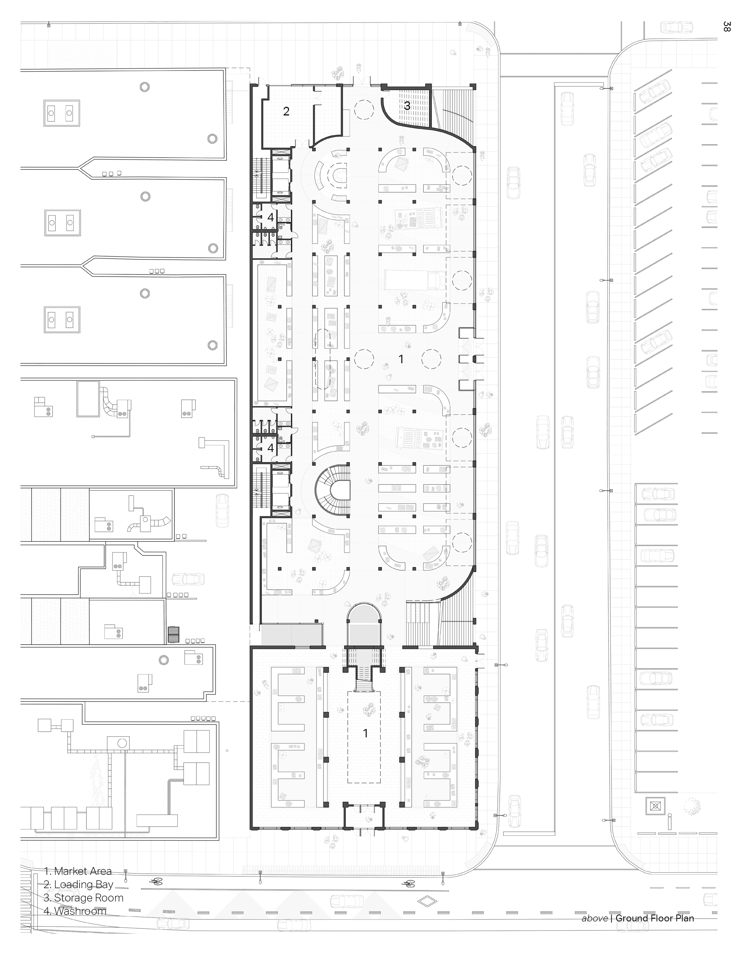
{ INFORMED DESIGN }
Across typologies and scales, I strive to create engaging spaces informed by context, history, and the surrounding social fabric.
{ AFFILITATIONS & EDUCATION }
Ontario Association of Architects - Intern Architect
Master of Architecture - Toronto Metropolitan University
Royal Architectural Institute of Canada - Member
Toronto Society of Architects - Member


{ ABOUT }
My Experience
Throughout my professional experience I've had the pleasure of working with talented people on a broad range of projects throughout Canada and internationally.
{ ABOUT }
My Skillset
Over the course of my education and career, I have developed a diverse skill set spanning both technical and creative disciplines.


































































