Courthouse Square Revitalization
The existing parking lot on the east side of Courthouse Square disrupts the spatial and visual continuity between Church Street and the park, undermining its potential as a vibrant public realm asset. This disconnect has led to low pedestrian engagement and a lack of recognition of the park as a meaningful public space. To address this, the lot must be reimagined as a civic gateway—an urban threshold that strengthens the park’s connection to Church Street and Old Toronto, and invites users into the space. This transformation creates a defined pedestrian path that creates a physical link between the historic courthouse and St. James Cathedral, contributing to the narrative of Old Toronto that defines the surrounding neighborhood.
Location
Church Street, Toronto


Distinctions
Toronto Metropolitan University Year End Show
Featured in City of Toronto Doors Open 2025


DENSIFY.
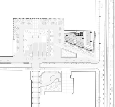
The site is densified according to zoning regulations to house back-of-house infrastructure that currently invades the square.
ANGLE.
The edge of the building is angled to establish views between the square, the street, and the church across the road.
SLOPE.
The central portion of the building is cut away and sloped towards the park, creating a seamless extension of Court House Square.
Concept Diagrams






















Site Plan
South Elevation


Concept Sketches


Experiential Diagram
The laneways surrounding Courthouse Square, currently dominated by back-of-house functions such as dumpsters and food waste storage, represent a further opportunity. These lanes could serve as an expansion of the park and pedestrian space. By creating a centralized waste disposal room within the new building proposal and repurposing the laneways as walkable public corridors, the project successfully creates additional space to be used for patios, vendors, and informal gatherings. This expanded space spills into the new building, with the park unfolding upwards to an elevated viewing platform directly between the courthouse and cathedral. This condition creates an explicit connection between the two landmarks, and allows for a unique pedestrian experience defined by the history of the neighbourhood.
