Gray Coach Terminal
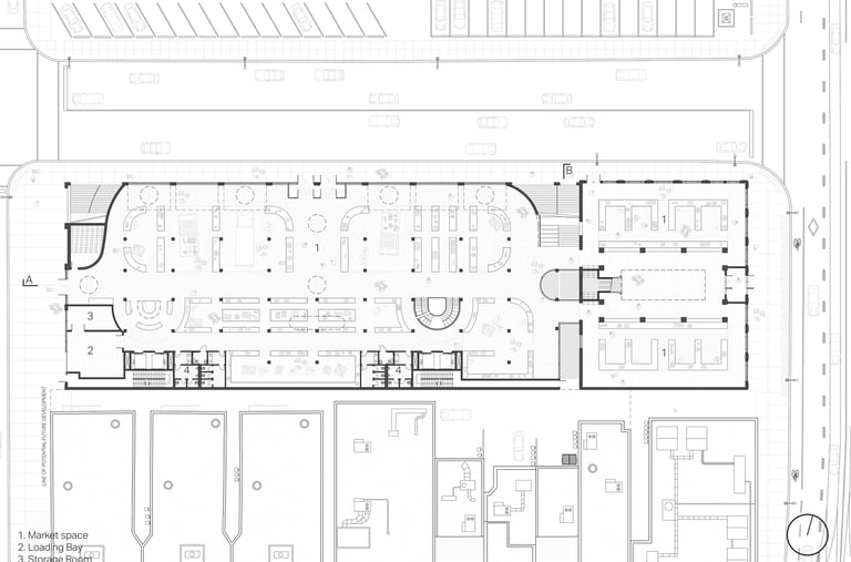
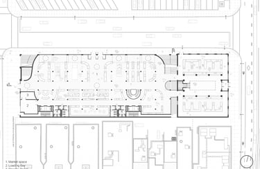
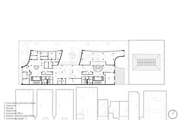
The Gray Coach Terminal conceptualizes a new life for a disused bus station in downtown Toronto. It envisions a lively market place that embraces the original art deco building and bus bays, converting it into an open air, all-season hub of activity. The original circulation paths of buses through the terminal are reflected in the new forms above which house community programming and retail areas, creating a palimpsest of the building's past. The material palette of the addition responds to the site's automotive history and expresses raw aluminum and metal formed into forms which borrow from classic bus designs. The terracing of the rooftop community spaces gently gestures towards the original art-deco terminal building, emphasizing its importance and respecting its conservative scale. The new marketplace utilizes the original bus entries for vendors to unload, and the garage-style doors allow for the market to spill onto the sidewalk in warmer weather. The original stained glass window with ‘Gray Coach’ branding becomes a centerpiece between the old and the new, residing in a lightwell which gives it visibility from the basement up to the roof terrace and spotlights the historical character of the building.
Location
Bay Street, Toronto


Distinctions
Toronto Metropolitan University Year End Show
325 Magazine Feature
DELINEATE.
Forming the facade along Edward Street to align with significant datums representing additions and uses of the building through time.
CARVE.
Cutting out portions of the form using the former bus platforms as guiding lines allow for community spaces to be created on multiple levels.
SCULPT
Sculpting the facade to gesture towards the existing building emphasizes its importance on the site and respects its scale.
Concept Diagrams




PROGRAM.
Densify the site in response to city guidelines and the surrounding context, while maintaining emphasis on the historic art-deco lobby building.


















North Elevation
Site Plan


Floor Plans


Building Section


