
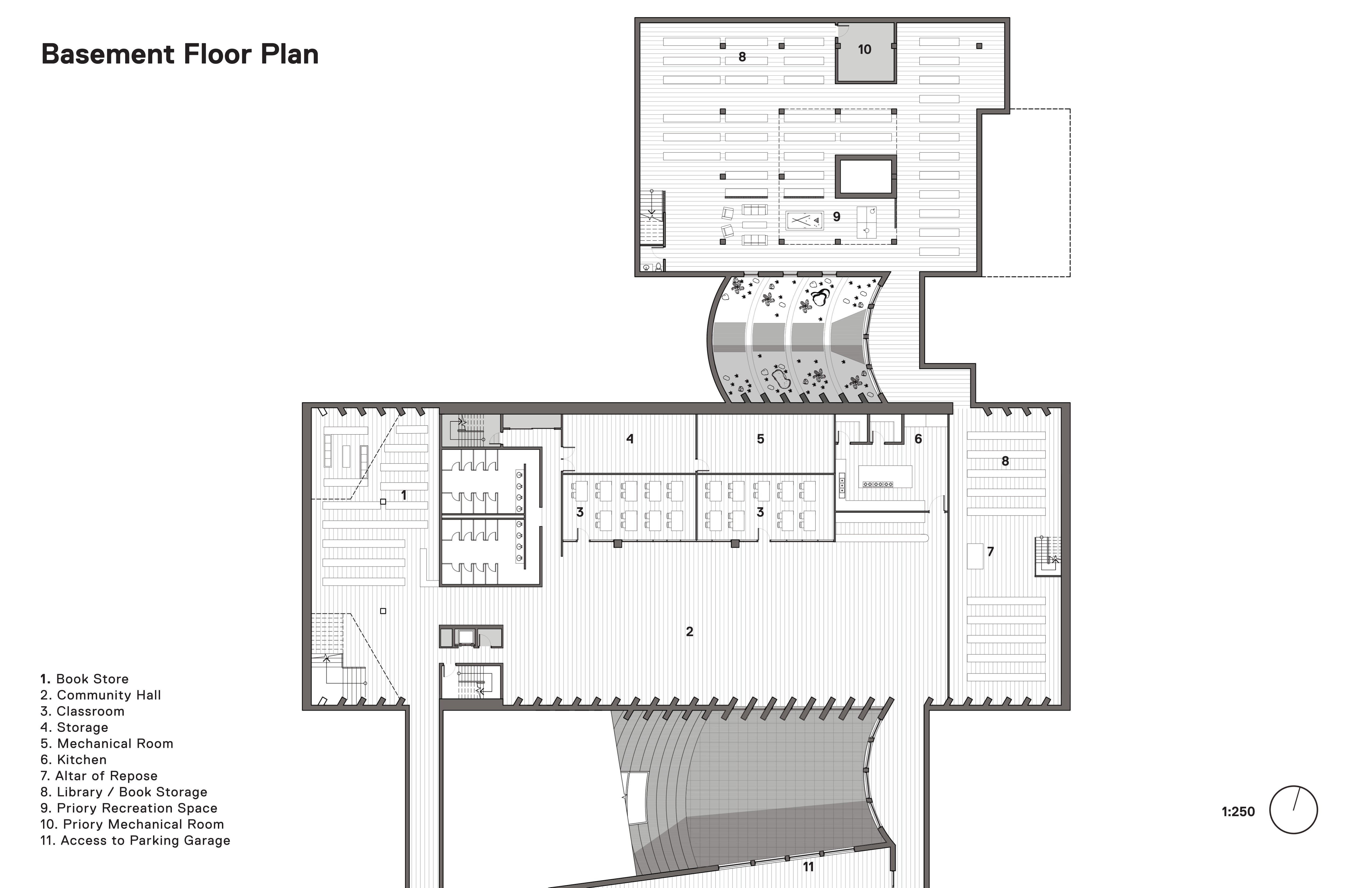
08

INTRO
St. Luke’s Cathedral is conceived as a contemporary reinterpretation of ecclesiastical space, where light becomes the primary architectural medium. Rather than relying on monumental form alone, the proposal organizes the building around a sequence of spatial thresholds that gradually transition from opacity to illumination. The massing is restrained and monolithic, allowing the articulation of openings to define both interior atmosphere and external identity.
A sunken courtyard framed by the bell tower creates an interstitial space for pedestrians to observe and admire the building as well as the Toronto skyline. This also helps create a stronger link to the below grade, community spaces within the church.
DESIGN OBJECTIVES

INTERIOR ILLUMINATION
Internally, apertures construct a dynamic field of light that reinforces liturgical hierarchy without explicit ornamentation. The nave is defined by a soft lateral glow, while the altar is marked by a concentrated beam of light descending from above. Circulation spaces remain comparatively dim, heightening the perceptual contrast and emphasizing moments of arrival, pause, and reflection.
MATERIALITY
Materially, the cathedral relies on a limited palette—cast-in-place concrete, pale stone, wood, and lightly textured plaster—to amplify the effects of natural light. Surfaces are selected for their capacity to absorb, reflect, and diffuse illumination, allowing light to register as both spatial and temporal.













