St. Luke's Church
The Church of St. Luke is an architectural design project that seeks to harmonize the solemnity and symbolism of traditional Christian liturgy with the clarity and expression of contemporary form. Rooted in the rich spiritual and artistic legacy of St. Luke—patron saint of artists, physicians, and iconographers—this church is conceived not only as a house of worship, but as a vessel of embodied beauty, storytelling, and sacred creativity. The architectural language of the building draws inspiration from early Christian basilicas and Eastern iconographic traditions, yet it is reinterpreted through a minimalist, modern material palette that emphasizes light, space, and texture. The structure is defined by a restrained exterior—monolithic yet welcoming—contrasted by an interior that unfolds in layers of curated artistic experience. Natural light is choreographed to wash over textured walls and sacred images, evoking the divine through illumination.
Location
Corktown, Toronto


Distinctions
Toronto Metropolitan University Year End Show


DEFINE.
The church plan is defined by a traditional cruciform shape, reflecting the long established principles of sacred spaces.
FRAME.
Large columns make the central church space both structurally and sculpturally expressive; a conventional characteristic of churches.
RECESS.
The two wings are recessed into the ground to allow light and exterior access from the adjacent priory and community spaces.
Concept Diagrams






















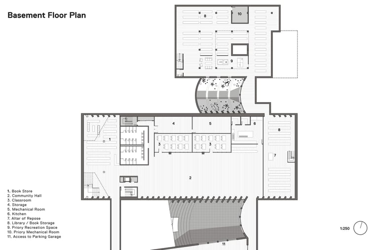
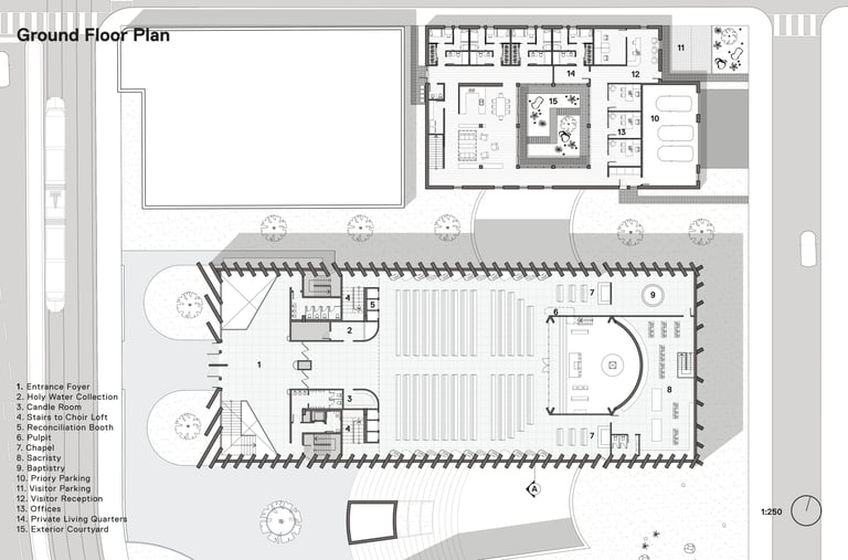
Floor Plans










