
11

INTRO
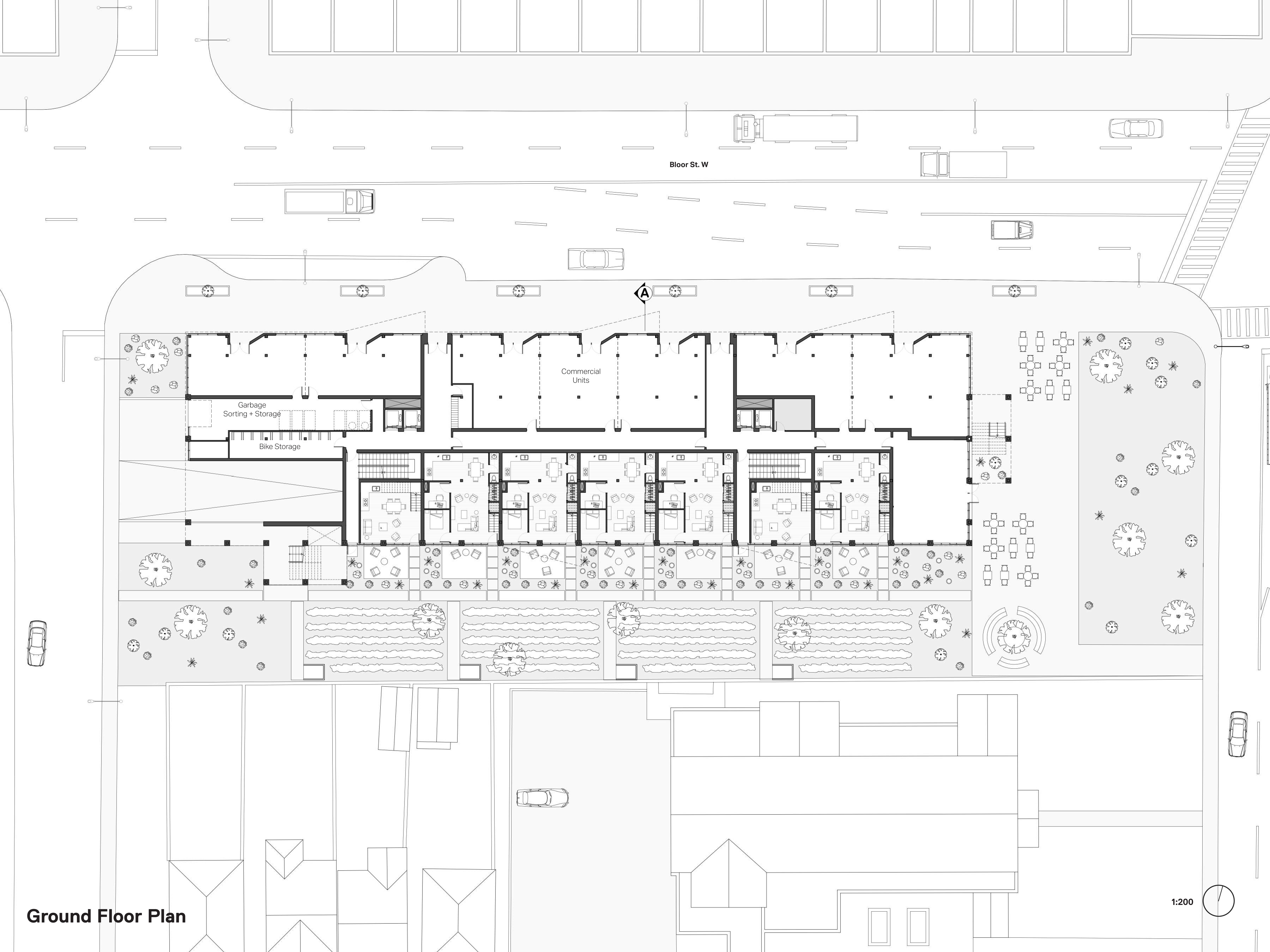
This proposed midrise development on the west end of Toronto seeks to bridge the scale and character of the existing family home typology with the increased density required in the city. Rather than imposing a conventional multi-unit block, the project translates the key spatial qualities of single-family homes—private entrances, front yards with sidewalks, and two storey volumes—into a vertical form. The massing is articulated with stepped volumes, setbacks, and varied projections that echo the rhythm of the surrounding streetscape, allowing the building to functionally integrate with adjacent homes.
Programmatically, the development retains the functional diversity that makes family homes appealing. Units are designed with adaptable layouts, balconies, and private outdoor spaces that extend the domestic experience upward.
DESIGN OBJECTIVES

Ground-level units maintain direct access to the street or garden spaces, reinforcing the sense of ownership and connection to the neighborhood. Shared amenities are integrated discreetly, providing modern urban conveniences without compromising the intimate character of the streetscape.
THE OUTCOME
the project demonstrates that densification and neighborhood preservation are not mutually exclusive. By reinterpreting the qualities of single-family homes in a midrise form, the design maintains the spatial comfort, light, and private outdoor connections valued by residents.
CONTEXTUAL IMPACT
This housing model contributes to the city’s broader objectives for sustainable growth, offering a model for thoughtful urban infill that enhances both the built environment and the social fabric of the community.













