
04

INTRO
Courthouse Square is a historically significant parcel of land tucked away on the east side of Church Street in Toronto. This square is located in front of one of Toronto's first courthouses, constructed in 1853. After being used as a parking lot for many years, it was converted to a public park in 1995. Despite the intention to make this space a pleasant, accessible area, it has transformed into the opposite. The park has become isolated from its surroundings and largely forgotten and unmaintained.
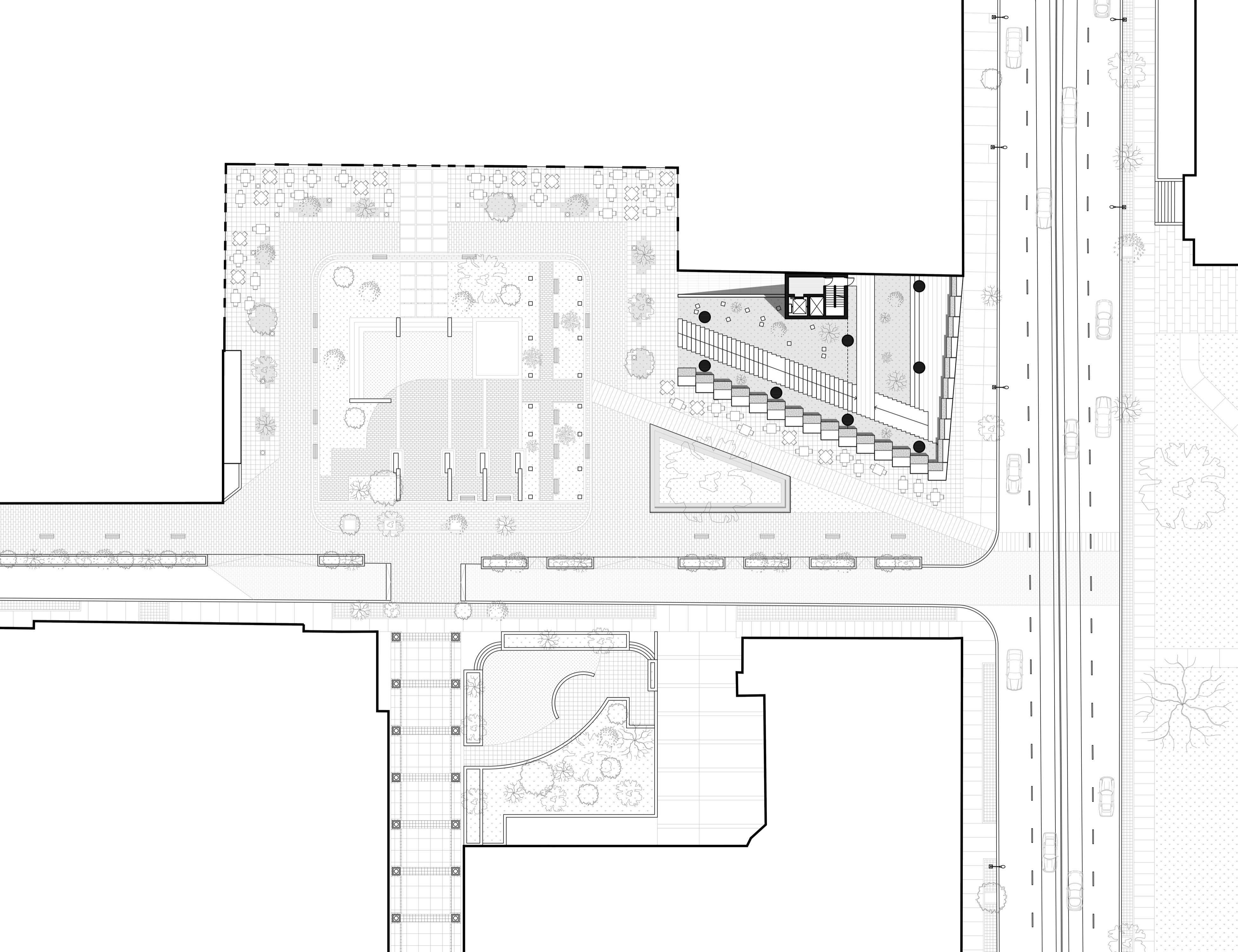
The south facade consists of a geometric, sculptural organization of forms that encourage interaction and visual interest among passerbys. This stepping form visually reflects the circulation path from the park, as pedestrians can 'step' up the new building to the elevated viewing terrace.
DESIGN OBJECTIVES

The viewing terrace is oriented to provide direct views between St. James Church and the historic Courthouse. Experiencing both of these buildings in a single space helps reinforce the narrative of old Toronto, and remind pedestrians of the history of the neighbourhood.
PEDESTRIAN EXPERIENCE
Key design elements encourage spontaneous encounters through visually unique forms, landscape transformations, and the clear communication of public accessibility. Elements like inviting seating arrangements, varied greenery, and thoughtfully placed pathways not only enhance the aesthetic appeal but also contribute to a sense of comfort and relaxation.
OUTCOMES
By weaving together these physical and atmospheric elements with the rich historical narratives of the site, the space becomes a catalyst for both personal moments and collective experiences. The site becomes an integral part of urban life where the opportunity for serendipitous interaction presents itself in a variety of meaningful ways.













