
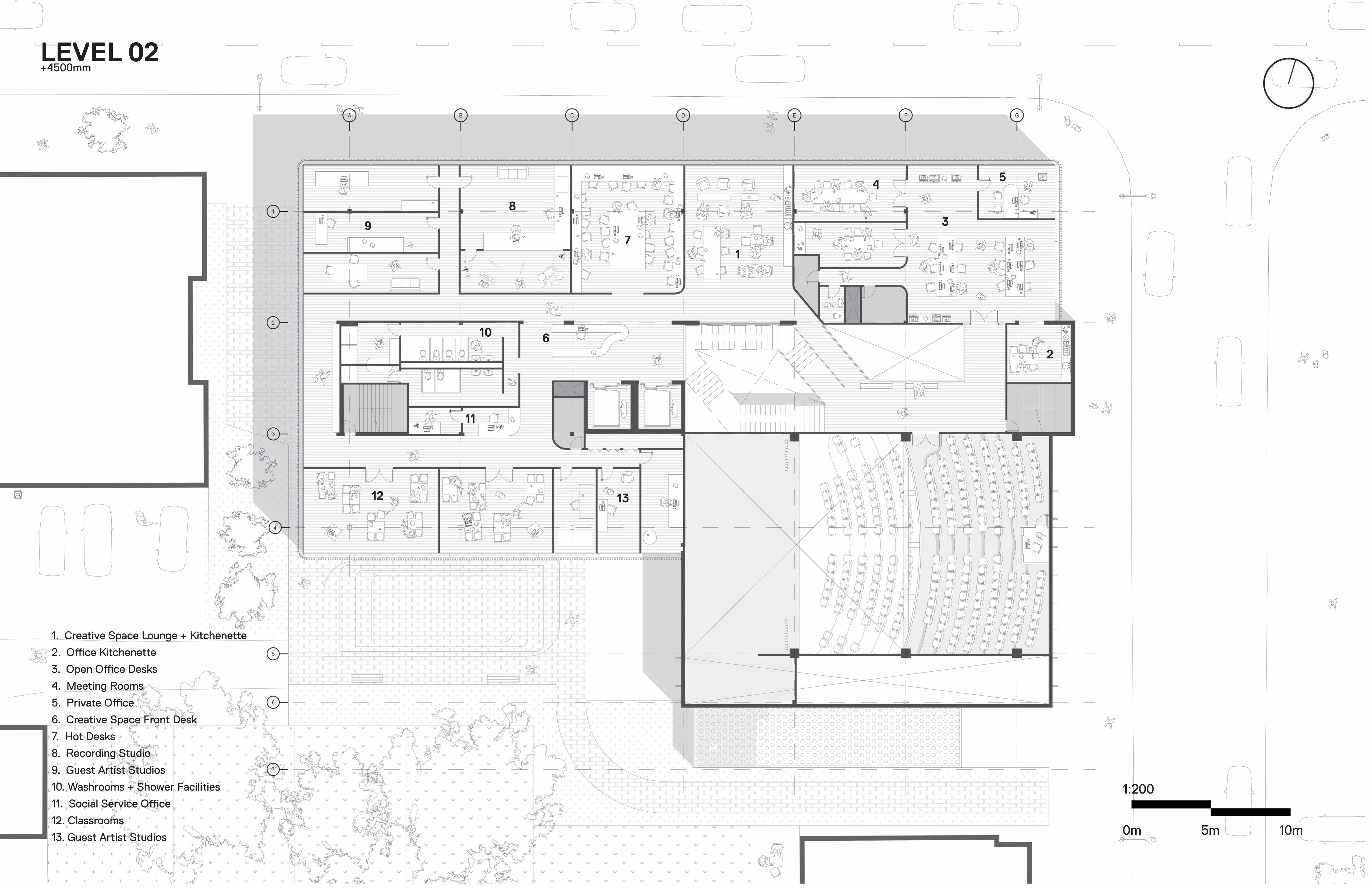
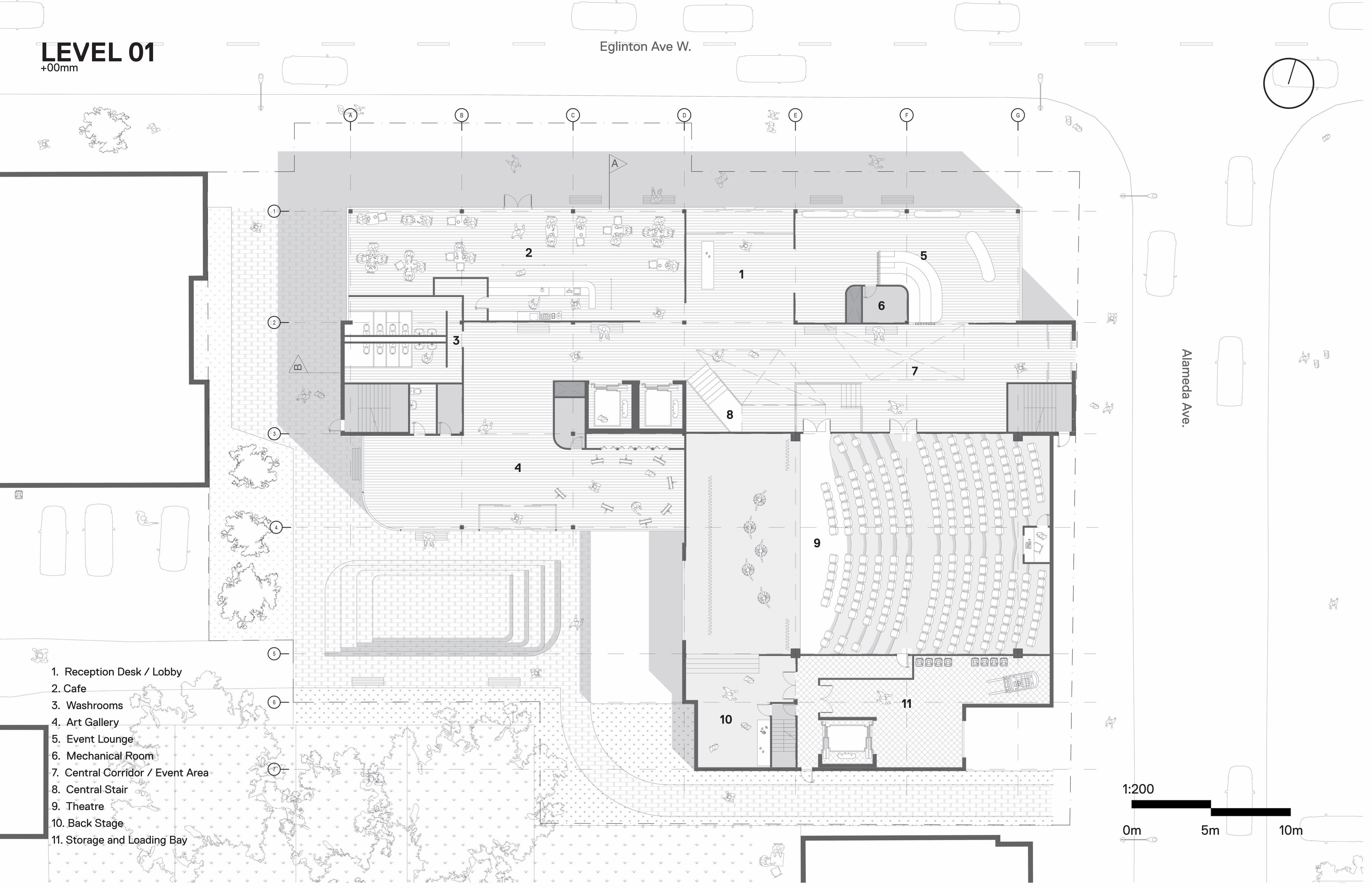
07

INTRO
The NIA Centre for the arts aims to integrate the unique culture and artistic expression of the surrounding little Jamaica neighborhood into a building which becomes a beacon within the community.
The centre supports the existing local artistic community while fostering the next generation of creative minds. The building aims to become a place that community members can take advantage of throughout their daily lives.
DESIGN OBJECTIVES

ARTISTIC INTEGRATION
Throughout the facade, local art is present on spandrel panels that are revealed through various openings within the cladding. At night, this work becomes backlit to illuminate a vibrant and colourful assemblage of art that embodies the surrounding neighbourhood.
THE OUTCOME
The resulting building becomes a outward beacon of artistic expression in Little Jamaica. This not only signals its use as a arts hub, but also creates meaning within the greater urban context. Various public art installations on and around the building instigate interaction and interest from pedestrians and ingrain art into the daily experience of the neighbourhood.













