United Commons
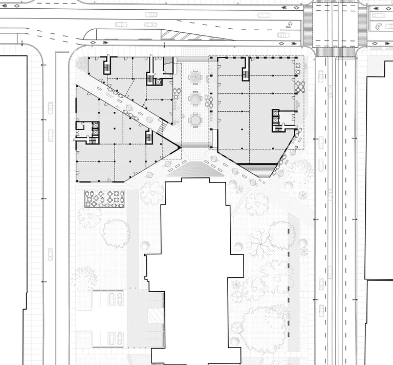
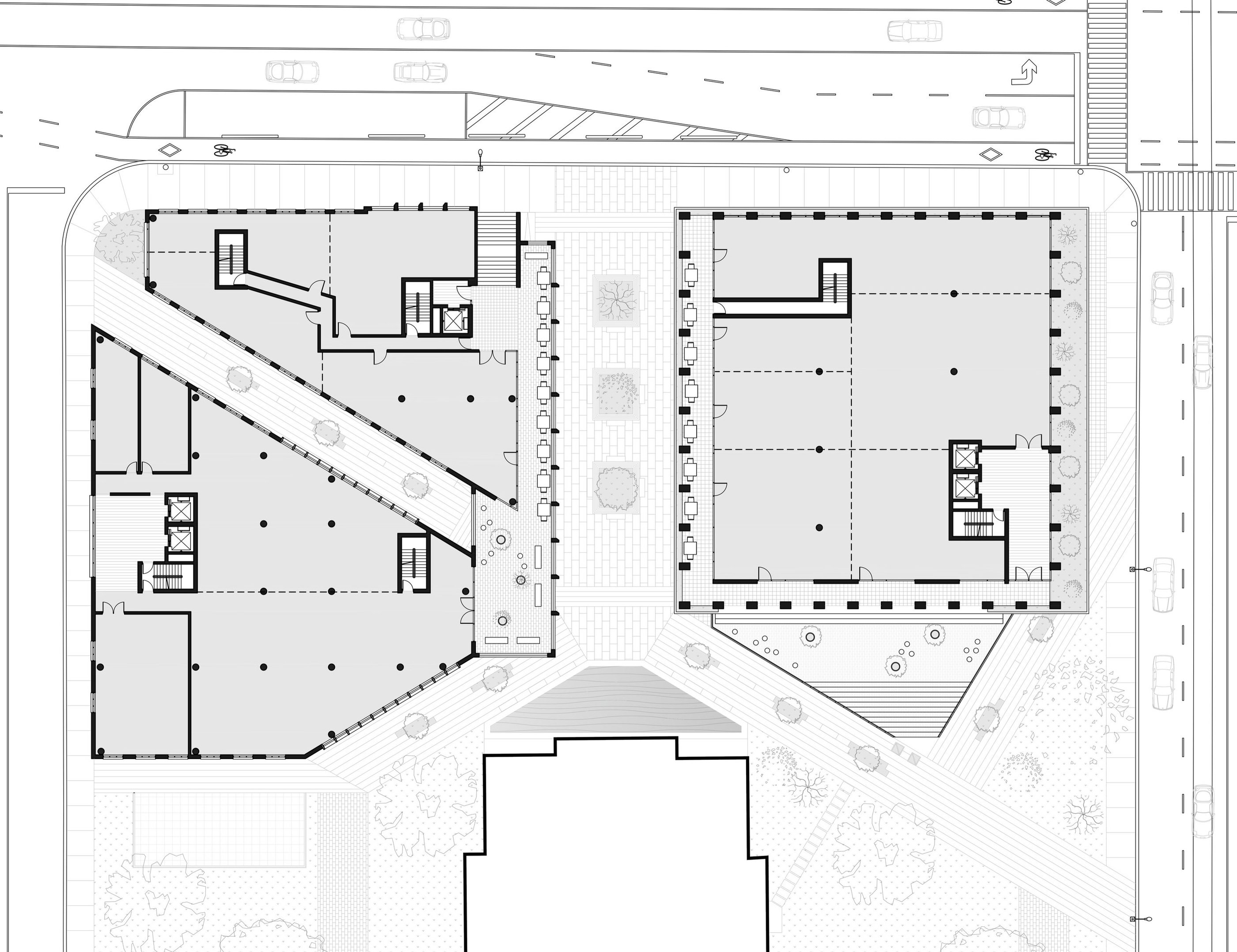
The size and position of the existing parking lot of United Church allowed for a drastic intervention to take place on the site, but it had to be approached sensitively to respect the historical significance of the area. The church remained the central focus of the site, with any new intervention designed to respect its scale and materiality. The dialogue between St. Michael’s Cathedral and the United Church was a unique condition that held the potential to create a captivating moment within the space situated between them. Furthermore, the existing circulation in and around the site was leveraged to better engage with the pedestrian realm. The site's proximity to Yonge Street and its dense commercial strip sees significant pedestrian use, and this relationship offered an opportunity to draw people inward and activate the space.
Location
Church Street, Toronto


Distinctions
Toronto Metropolitan University Year End Show
Featured in City of Toronto Doors Open 2025


SEPARATE.
Separating the new form on the site creates a central pedestrian square looking outwards towards the two adjacent churches.
SLICE.
Slicing paths through the site create stronger connections to the surrounding neighbourhood and encourage pedestrian interaction.
LOFT.
Creating elevated pedestrian spaces throughout the site allow for unique views of the churches and improve accessibility to upper levels.
Concept Diagrams






















Site Plan
East Elevation (Central Square)


Second Level Plan


